Porzione di bifamiliare in vendita

Brescia, Via della Chiesa - Urago Mella
€ 445.000
4 locali 4 locali
152 Mq 152 Mq
2 bagni 2 bagni

Porzione di bifamiliare in vendita

Brescia, Via della Chiesa - Urago Mella

Descrizione annuncio

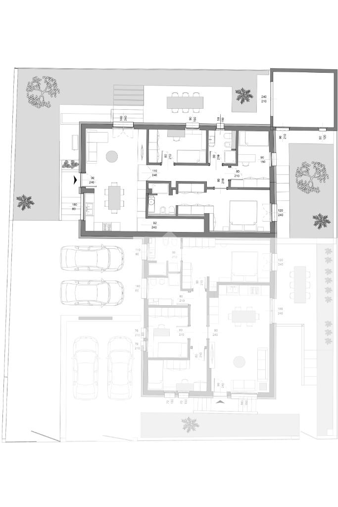
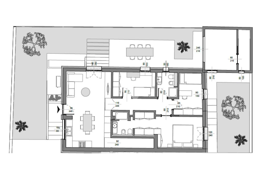
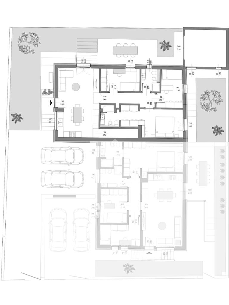
URAGO MELLA

APPARTAMENTO SELINI

L’appartamento Selini è un quadrilocale distribuito su un unico livello, composto da ampia zona living, tre camere e due bagni. Completano la proprietà due posti auto, cantina e area verde esterna e dependance (18 mq).

L’immobile in cui è inserito l’appartamento è attualmente in fase di ristrutturazione e prevede la realizzazione di un secondo quadrilocale, per due unità abitative totali.

Struttura e tecnologie costruttive

Il nuovo edificio sarà a energia quasi zero (nZEB): avrà altissime prestazioni energetiche, grazie all’ottimizzazione degli impianti e delle fonti utilizzate. Inoltre, l’involucro sarà isolato in modo da ridurre al minimo le dispersioni.

Nello specifico l’appartamento Selini si caratterizza per:

Impianto di riscaldamento a pavimento con generatore a pompa di calore per riscaldamento e produzione acqua calda sanitariaSistema di termoregolazione della temperatura per zonaVentilazione Meccanica Controllata con deumidificazione per salubrità degli ambientiImpianto fotovoltaico da 6 kWImpianto elettrico smart con controllo consumi, luci, tapparelle e carichiCappotto termico, tetto nuovo e sottotetto isolatoIsolamento pavimento verso zone freddeSerramenti in pvc con trasmittanza termica U < 1,3 W/m²K e doppio vetroMonoblocchi coibentati comprensivi di cassonetto e guida per avvolgibili in alluminioPortoncino blindato dotato di isolamento termico, acustico e sistemi antieffrazione

L’appartamento verrà consegnato rifinito con: porte interne, battiscopa, arredo bagno, sanitari, pavimenti, rivestimenti, tinteggiature e carta da parati, placchette interruttori e corpi illuminanti da incasso.

Si precisa che tutte le soluzioni applicate sono progettate per dare ai suoi abitanti il massimo comfort abitativo, unito a scelte estetiche attuali e curate.

Per maggiori informazioni sull’acquisto, contattateci.

Mostra tutto

Nelle vicinanze

Trasporto pubblico Trasporto pubblico
Marconi
Marconi
2,4 Km
San Faustino
San Faustino
2,5 Km
Brescia Borgo San Giovanni
Brescia Borgo San Giovanni
2,0 Km
Via Della Chiesa n 23
Via Della Chiesa n 23
90 m
Via Della Chiesa n 38
Via Della Chiesa n 38
100 m
Ricariche auto elettriche Ricariche auto elettriche
A2A Torricella
410 m
A2A Montello
1,8 Km
Concessionaria Nissan Victoria Brescia
1,8 Km
A2A BS Tartaglia
2,1 Km
A2A BS Rocca d'Anfo
2,3 Km
Scuole Scuole
Scuola Primaria Goffredo Mameli
430 m
Scuola Primaria Pietro Emilio Tiboni
660 m
Scuola Primaria Cristoforo Colombo
760 m
Liceo delle Scienze Umane Fabrizio De André
850 m
Bottega Artigiani
1,2 Km
Farmacia Farmacia
Farmacia Comunale 07 Urago Mella
280 m
Farmacia Sant'Antonio
620 m
Farmacia Comunale 08 Pendolina
720 m
Farmacia Zadei
1,3 Km
Farmacia Salvi
1,7 Km
Ospedali Ospedali
Istituto Clinico Sant'Anna
1,6 Km
Istituto Clinico Città di Brescia
2,4 Km
Pronto Soccorso
2,4 Km
Pronto Soccorso Pediatrico Cavaliere del Lavoro Francesco Folonari
2,6 Km
Spedali Civili di Brescia
2,7 Km
Supermercati Supermercati
Family Market
310 m
A tutto risparmio
340 m
Italmark
510 m
Freschissimo
720 m
Carrefour
1,1 Km
Negozi Negozi
Capogiro
440 m
Intimondo
1,2 Km
WhiteWolf
1,5 Km
Massimiliano Rodella Fornaio
1,7 Km
Onlyone
1,8 Km
Bar Bar
Bar Viandante
1,7 Km
Bar
1,9 Km
Taj Mahal
2,4 Km
Sottoscala
2,4 Km
Carmen Town
2,4 Km
Ristoranti Ristoranti
Pizzeria Golfo di Napoli
350 m
Pizzeria I Tre Monelli
410 m
Osteria La Vinaccia
470 m
Ristorante Pizzeria Cormorano
510 m
Lo Stran Palato
530 m
Mostra tutto

Caratteristiche

Rif.:
61176485
Piano:
Terra con giardino di 1
Totale piani:
1
Posti auto:
2
Camere da letto:
3
Arredamento:
Assente
Mostra tutto
Prezzo Prezzo
€ 445.000
Rata mutuo Rata mutuo
€ 2.114 / mese
Spese annue Spese annue
€ 0
Proponi il tuo prezzoProponi il tuo prezzo

Classe Energetica

A4
A4
A4
A4
A4
A4
A4
A4
A4
EP globale non rinnovabile:
12.40 kW h/m² anno
EP globale rinnovabile:
1.48 kW h/m² anno
EP invernale del fabbricato:
EP estiva del fabbricato:
Anno di costruzione:
2026
Riscaldamento:
Autonomo
Tipo impianto:
A pavimento
Tipo alimentazione:
Altro

Ti interessa visionare l'immobile?

Fissa un appuntamento  Fissa un appuntamento

Richiedi informazioni

Clicca su Leggi per aprire l'informativa
* Questi campi sono obbligatori

Calcola il tuo mutuo

Semplice e senza impegno
Anticipo

( % )
Mutuo

( % )

pochi semplici passi

inserisci i tuoi dati
Questionario completato
Grazie per aver richiesto un appuntamento senza impegno con un nostro Consulente del Credito e Assicurativo.

Hai inserito correttamente tutti i dati necessari e a breve riceverai una e-mail con un link da convalidare per inviare i tuoi dati.
Affiliato
Agenzia Imm.re Urago Srl
Via Del Risorgimento, 77 25127 Brescia (BS)

Il nostro staff


  • Armando Iorio
    Affiliato

  • Sebastiano Ferrandi
    Affiliato
Via Del Risorgimento, 77 25127 Brescia (BS)
Zona: Urago Mella - Pendolina - Q.re Abba
Mostra su mappa
Orari: dal lunedì al venerdì 09.00/12.30 e 14.30/19:00; sabato 09.00/14.30.
Affiliato
Agenzia Imm.re Urago Srl
Via Del Risorgimento, 77 25127 Brescia (BS)

2026 Tecnocasa Franchising S.p.A. - P. IVA 08365160152 - Via Monte Bianco 60/A 20089 Rozzano (MI). Ogni agenzia ha un proprio titolare ed è autonoma. Privacy policy | Policy utilizzo | Cookie policy