Porzione di bifamiliare in vendita

Brescia, Via della Chiesa - Urago Mella
€ 410.000
4 locali 4 locali
137 Mq 137 Mq
2 bagni 2 bagni

Porzione di bifamiliare in vendita

Brescia, Via della Chiesa - Urago Mella

Descrizione annuncio

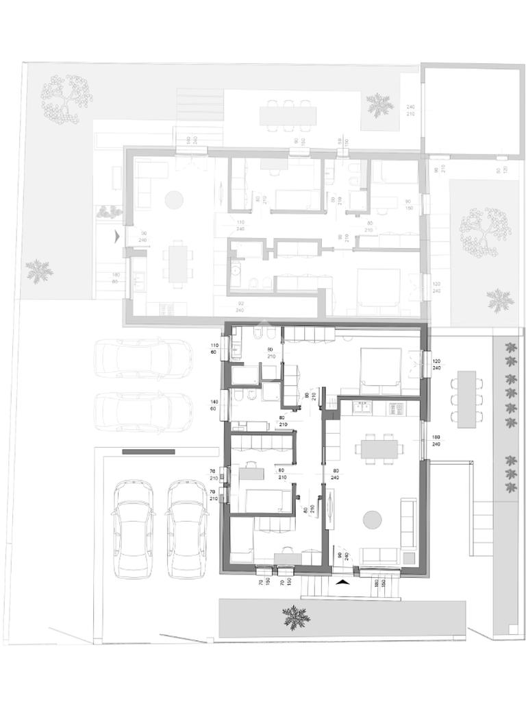
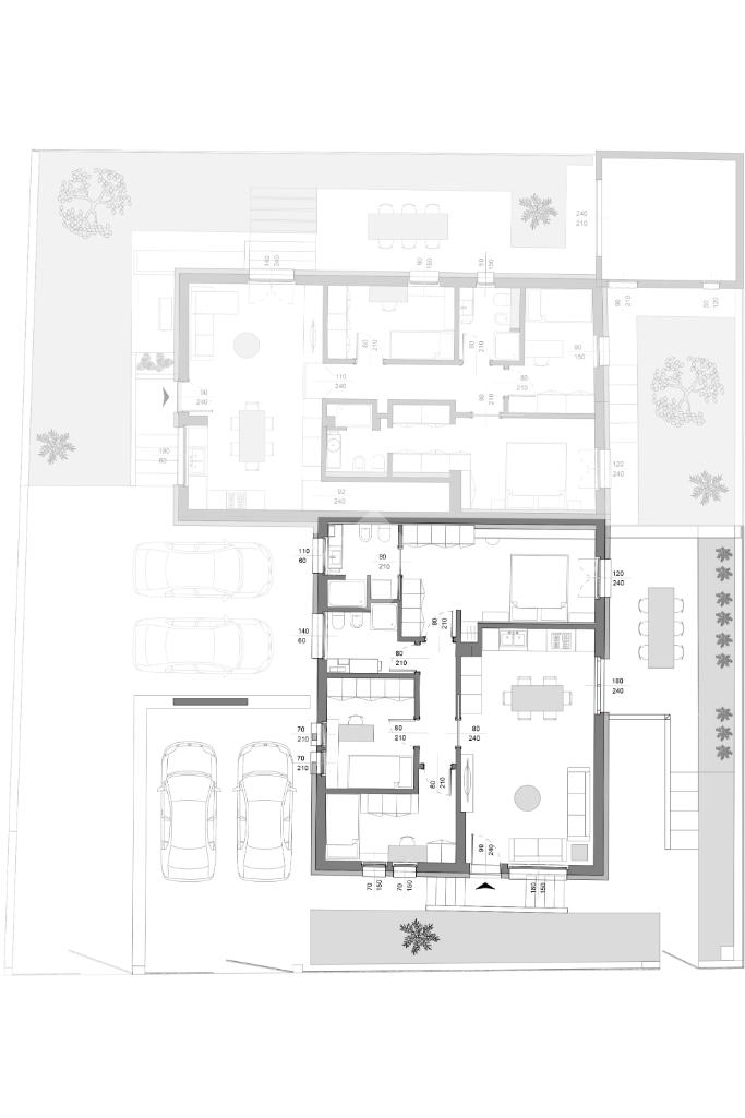
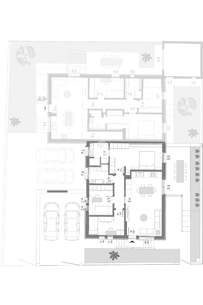
APPARTAMENTO ILIOS

L’appartamento Ilios è un quadrilocale distribuito su un unico livello, composto da ampia zona living, tre camere e due bagni. Completano la proprietà due posti auto, cantina e terrazzina vivibile.

L’immobile in cui è inserito l’appartamento è attualmente in fase di ristrutturazione e prevede la realizzazione di un secondo quadrilocale, per due unità abitative totali.

Struttura e tecnologie costruttive

Il nuovo edificio sarà a energia quasi zero (nZEB): avrà altissime prestazioni energetiche, grazie all’ottimizzazione degli impianti e delle fonti utilizzate. Inoltre, l’involucro sarà isolato in modo da ridurre al minimo le dispersioni.

Nello specifico l’appartamento Ilios si caratterizza per:

Impianto di riscaldamento a pavimento con generatore a pompa di calore per riscaldamento e produzione acqua calda sanitariaSistema di termoregolazione della temperatura per zonaVentilazione Meccanica Controllata con deumidificazione per salubrità degli ambientiImpianto fotovoltaico da 6 kWImpianto elettrico smart con controllo consumi, luci, tapparelle e carichiCappotto termico, tetto nuovo e sottotetto isolatoIsolamento pavimento verso zone freddeSerramenti in pvc con trasmittanza termica U < 1,3 W/m²K e doppio vetroMonoblocchi coibentati comprensivi di cassonetto e guida per avvolgibili in alluminioPortoncino blindato dotato di isolamento termico, acustico e sistemi antieffrazione

L’appartamento verrà consegnato rifinito con: porte interne, battiscopa, arredo bagno, sanitari, pavimenti, rivestimenti, tinteggiature e carta da parati, placchette interruttori e corpi illuminanti da incasso.

Si precisa che tutte le soluzioni applicate sono progettate per dare ai suoi abitanti il massimo comfort abitativo, unito a scelte estetiche attuali e curate.

Per maggiori informazioni sull’acquisto, contattateci.

Mostra tutto

Nelle vicinanze

Trasporto pubblico Trasporto pubblico
Marconi
Marconi
2,4 Km
San Faustino
San Faustino
2,5 Km
Brescia Borgo San Giovanni
Brescia Borgo San Giovanni
2,0 Km
Via Della Chiesa n 23
Via Della Chiesa n 23
80 m
Via Della Chiesa n 38
Via Della Chiesa n 38
90 m
Ricariche auto elettriche Ricariche auto elettriche
A2A Torricella
410 m
A2A Montello
1,8 Km
Concessionaria Nissan Victoria Brescia
1,8 Km
A2A BS Tartaglia
2,1 Km
A2A BS Rocca d'Anfo
2,3 Km
Scuole Scuole
Scuola Primaria Goffredo Mameli
440 m
Scuola Primaria Pietro Emilio Tiboni
670 m
Scuola Primaria Cristoforo Colombo
750 m
Liceo delle Scienze Umane Fabrizio De André
840 m
Istituto Marco Polo
1,2 Km
Farmacia Farmacia
Farmacia Comunale 07 Urago Mella
270 m
Farmacia Sant'Antonio
620 m
Farmacia Comunale 08 Pendolina
730 m
Farmacia Zadei
1,3 Km
Farmacia Salvi
1,7 Km
Ospedali Ospedali
Istituto Clinico Sant'Anna
1,5 Km
Istituto Clinico Città di Brescia
2,4 Km
Pronto Soccorso
2,5 Km
Pronto Soccorso Pediatrico Cavaliere del Lavoro Francesco Folonari
2,7 Km
Spedali Civili di Brescia
2,7 Km
Supermercati Supermercati
Family Market
310 m
A tutto risparmio
330 m
Italmark
520 m
Freschissimo
700 m
Carrefour
1,1 Km
Negozi Negozi
Capogiro
450 m
Intimondo
1,2 Km
WhiteWolf
1,5 Km
Massimiliano Rodella Fornaio
1,7 Km
Onlyone
1,8 Km
Bar Bar
Bar Viandante
1,7 Km
Bar
1,9 Km
Taj Mahal
2,4 Km
Sottoscala
2,4 Km
Carmen Town
2,4 Km
Ristoranti Ristoranti
Pizzeria Golfo di Napoli
340 m
Pizzeria I Tre Monelli
430 m
Osteria La Vinaccia
480 m
Ristorante Pizzeria Cormorano
520 m
Lo Stran Palato
550 m
Mostra tutto

Caratteristiche

Rif.:
61176496
Piano:
Terra con giardino di 1
Totale piani:
1
Posti auto:
2
Terrazzi:
1
Camere da letto:
3
Mostra tutto
Prezzo Prezzo
€ 410.000
Rata mutuo Rata mutuo
€ 1.948 / mese
Spese annue Spese annue
€ 0
Proponi il tuo prezzoProponi il tuo prezzo

Classe Energetica

A4
A4
A4
A4
A4
A4
A4
A4
A4
EP globale non rinnovabile:
13.45 kW h/m² anno
EP globale rinnovabile:
1.14 kW h/m² anno
EP invernale del fabbricato:
EP estiva del fabbricato:
Anno di costruzione:
2026
Riscaldamento:
Autonomo
Tipo impianto:
A pavimento
Tipo alimentazione:
Altro

Ti interessa visionare l'immobile?

Fissa un appuntamento  Fissa un appuntamento

Richiedi informazioni

Clicca su Leggi per aprire l'informativa
* Questi campi sono obbligatori

Calcola il tuo mutuo

Semplice e senza impegno
Anticipo

( % )
Mutuo

( % )

pochi semplici passi

inserisci i tuoi dati
Questionario completato
Grazie per aver richiesto un appuntamento senza impegno con un nostro Consulente del Credito e Assicurativo.

Hai inserito correttamente tutti i dati necessari e a breve riceverai una e-mail con un link da convalidare per inviare i tuoi dati.
Affiliato
Agenzia Imm.re Urago Srl
Via Del Risorgimento, 77 25127 Brescia (BS)

Il nostro staff


  • Armando Iorio
    Affiliato

  • Sebastiano Ferrandi
    Affiliato
Via Del Risorgimento, 77 25127 Brescia (BS)
Zona: Urago Mella - Pendolina - Q.re Abba
Mostra su mappa
Orari: dal lunedì al venerdì 09.00/12.30 e 14.30/19:00; sabato 09.00/14.30.
Affiliato
Agenzia Imm.re Urago Srl
Via Del Risorgimento, 77 25127 Brescia (BS)

2026 Tecnocasa Franchising S.p.A. - P. IVA 08365160152 - Via Monte Bianco 60/A 20089 Rozzano (MI). Ogni agenzia ha un proprio titolare ed è autonoma. Privacy policy | Policy utilizzo | Cookie policy